![]() |
||
|
This is the first floor flat in a small detached building of two flats. It looks like a cottage which has been divided, but actually it was built in the early 1930s as two flats. However, the style is 'cottagey' in line with the other houses leading down to the harbour at the end of the road. It is very close to the village centre and to the harbour and in one of the nicest bits of Emsworth. The flat is fully double-glazed and has gas-fired central heating, but best of all, it has its own private off-street parking which is long enough to take two small cars and a dinghy trailer. |
||
|
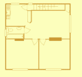
Floor plan |
|
|
|
Entrance side entrance with stairs up to flat |
||
|
Living Room 14' 1" by 10' 10" (4.3m by 3.3m) double glazed window, radiator, feature fireplace, |
|
|
|
Kitchen 7' 10" by 9' 2" (2.4m by 2.8m) Recently refitted with stainless steel sink; gas cooker; fitted cupboards and worktops; double glazed window; radiator |
|
|
|
Bedroom 1 9' 10" by 10' 10" (3.0m by 3.3m) double glazed window, radiator, feature fireplace, |
|
|
|
Bedroom 2 9' 10" by 10' 10" (3.0m by 3.3m) double glazed window, radiator, feature fireplace, |
|
|
|
Bathroom 4' 7" by 5' 8" (1.4m by 1.75m) Recently refitted and has a bath with shower over; basin; wc; mirror with light and shaver socket; radiator |
|
|
|
Outside Small enclosed courtyard garden at rear with an air-raid shelter! This makes a very good bicycle / motor-bike / surfboard / canoe store. |
|
|
![]() |
||
|
|
||
| Tenancy, References, etc |
Rent is £620.00 per calendar month payable by standing order monthly in advance. References will be required from bank, employer and current landlord. The initial tenancy will be for 6 months and then renewable or extendable on a monthly basis thereafter. The deposit is equivalent to five weeks rent, £700.00 |
|
|
|
||
| Tenancy fees | None | |
|
|
||
| Restrictions |
DSS or Housing Benefit recipients subject to usual references. Although it's two bedrooms, this is a small flat and it's not suitable for children. |
|
|
|
||
| Council Tax, EPC etc. |
The flat is in Band A. Havant Borough Council Tax for 2018/19 is £1,095.14 per year. EPC to be confirmed |
|
|
|
||
| Parking | There is private off-street parking next to the flat. | |
|
|
||
| Available | As soon as the redecorating is finished, 1st June. | |
|
|
||
| Further details: |
07939 502854
email:
lets@lettingsdirect.com 07939 502854 |
|
